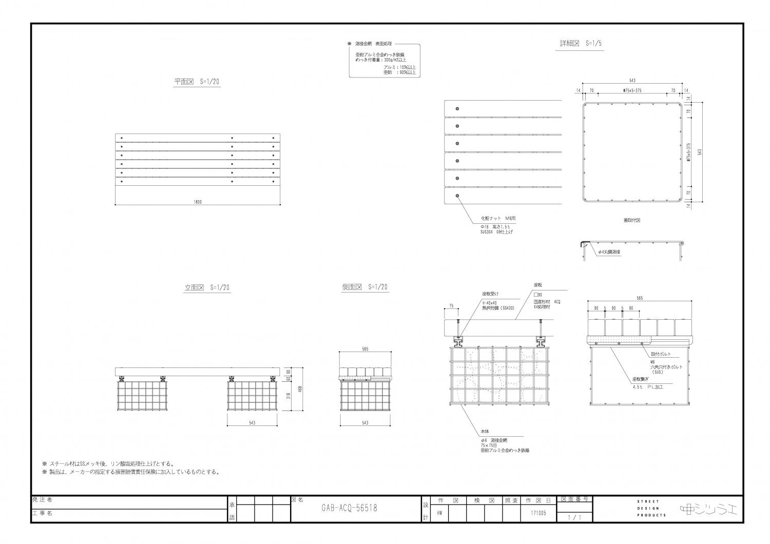
Gabion ベンチ

型番:GAB-ACQ-56518

SIZE:W3,000×H468×D717

[座板/MCF] M:国産杉 ACQ-K4処理材
□90
C:無塗装
(アボガドグリーン→オリーブグリーン→シルバーグレー)
F:プレーナー仕上げ [籠/MCF] M:溶接金網 Φ6 @75+ 熱押型綱 40H C:めっき色 F:亜鉛アルミ合金めっき

・蛇籠@75
・国産杉 10年保証材 産地指定可能
・熱押形鋼 40H
・超低頭ナット1.5t(Fナット)
・蛇籠の中の石材別途